МОРСКАЯ НАБЕРЕЖНАЯ. Студия дизайна интерьеров FORMA
МОРСКАЯ НАБЕРЕЖНАЯ. Студия дизайна интерьеров FORMA
МОРСКАЯ НАБЕРЕЖНАЯ. Студия дизайна интерьеров FORMA

МОРСКАЯ НАБЕРЕЖНАЯ

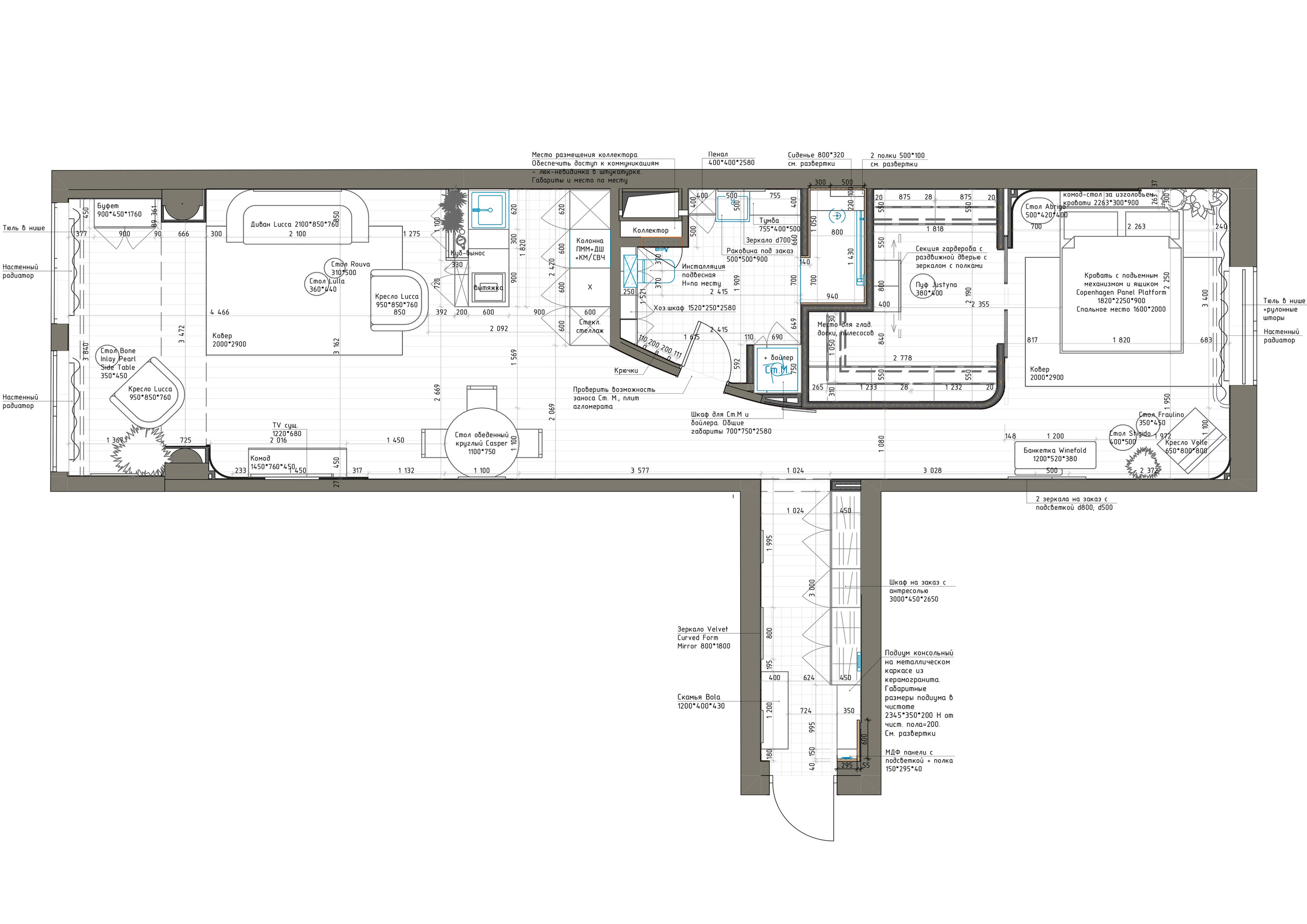
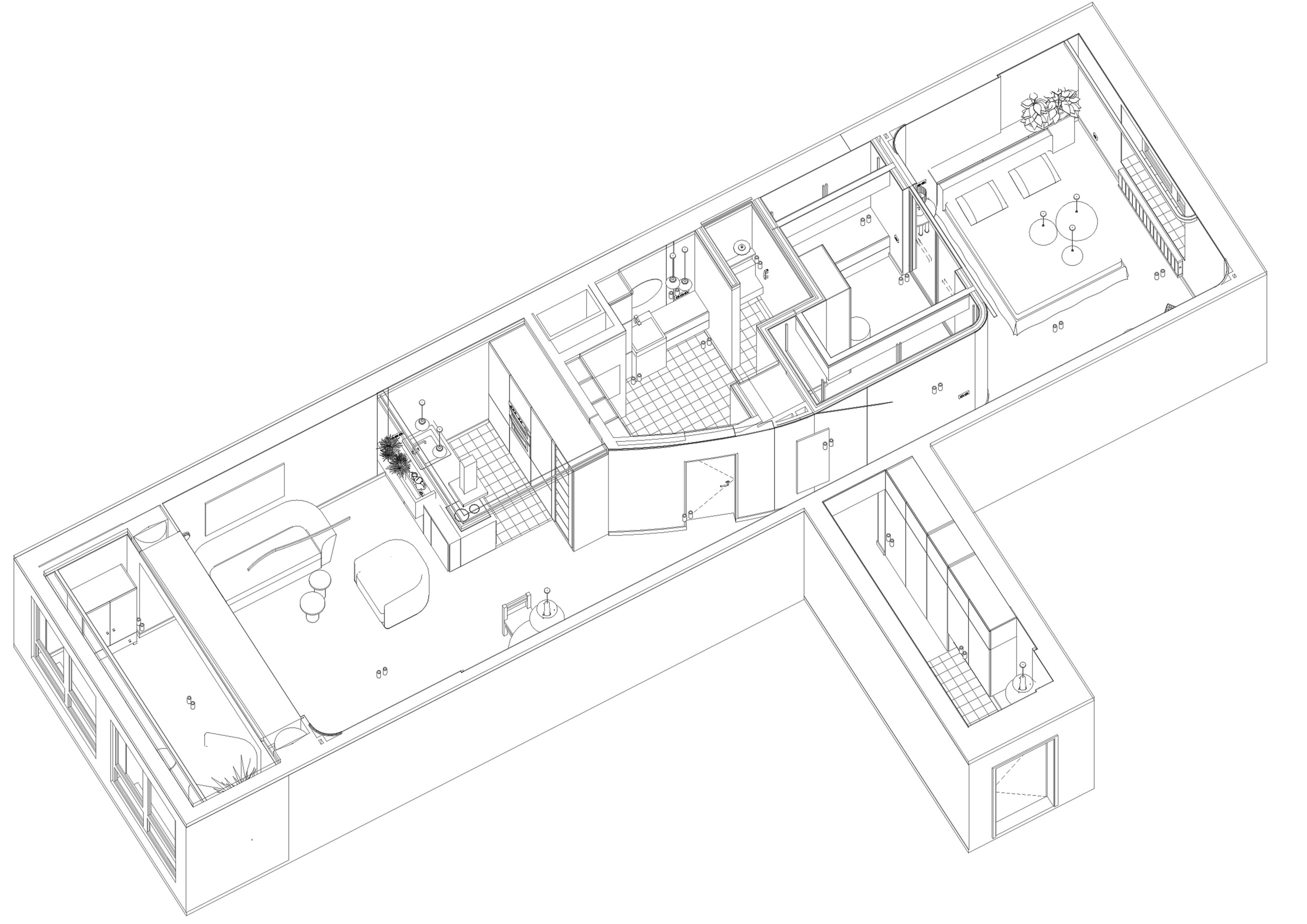
Проект в светлых оттенках, квартира для современной женщины в минималистичном стиле. 

  • Расположение: г. Санкт-Петербург
  • Тип объекта: Квартира
  • Площадь: 78,9 кв.м
  • Услуга: Базовый дизайн-проект

Проекты