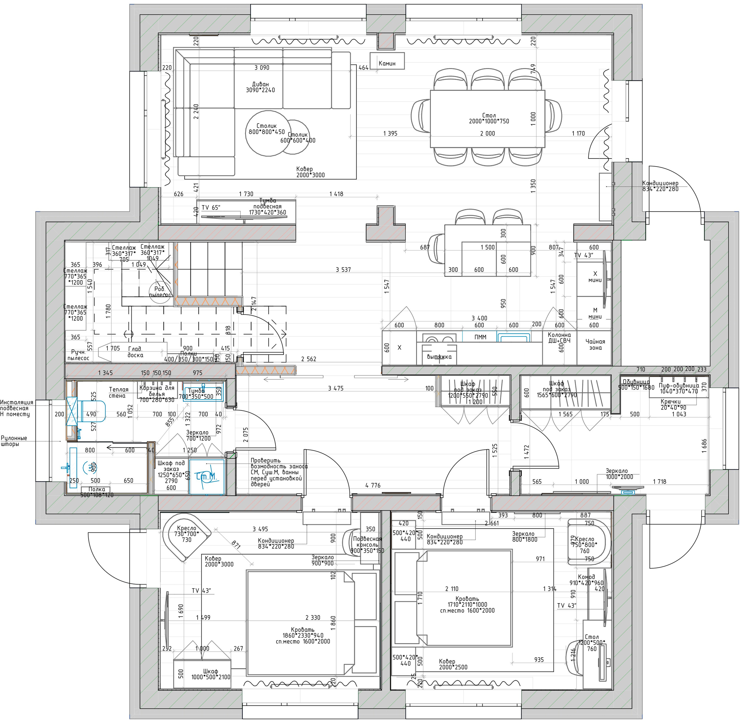
Проект частного двухэтажного жилого дома в пригороде Санкт-Петербурга. Пожелания заказчиков— интерьер минималистичный с наполнением в большей степени без заказных позиций. Дом — уютная обитель — место для сбора большой семьи.
- Расположение: пос. Белоостров
- Тип объекта: Частный дом
- Площадь: 179,5 кв.м
- Услуга: Базовый дизайн-проект



































